Group Project | Final Portfolio for Home Audit
June 04, 2017
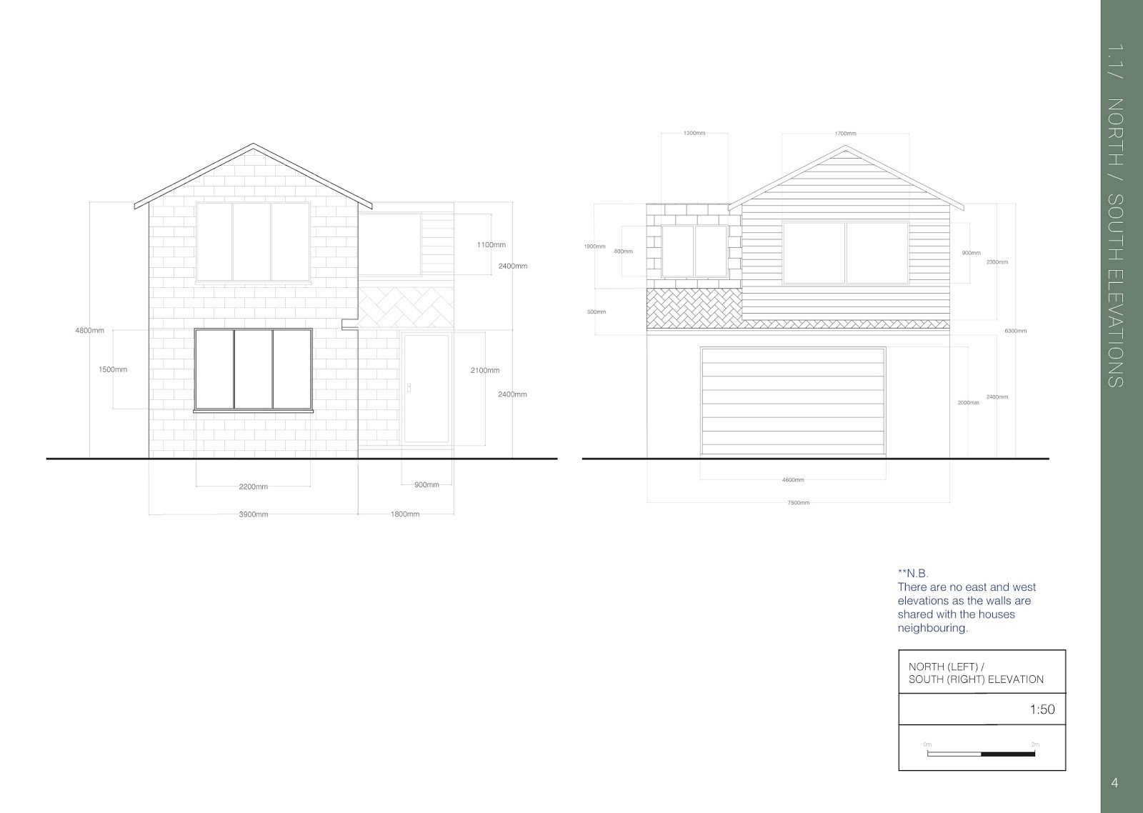
// B R I E F
The Home Audit allows you to develop your ecological and environmental design thinking by drawing,
analysing and exploring a place you are familiar with – the home. It is split into two submissions;
Home Audit 1:
Your Home’s Carbon Footprint (20%)
Working in groups of 3 or 4, students are required to choose a home that one of the group currently
lives in. Students will then prepare measured drawings, provide observational analysis and undertake
investigative research into the home’s materials and environmental performance in order to determine
its ‘carbon footprint’. Students are expected to reflect on both the carbon footprint itself (is this high?
Is it low?) as well as the process of determining it.
Home Audit 2:
Sustainable Design Analysis (30%)
Working in the same groups, the second submission challenges students to better understand the
impact climate and orientation has on their house. Students are expected to reflect on their learning
throughout the semester by suggesting creative solutions for redesigning the house to improve
specific factors of its environmental performance.




























0 comments